Uffici per terzi
- 3 zone sopra fabbrica 1+2+3 per totali
- 715mq, lato fiume
- 715 mq, H=2.5 metri con servizi
- Totale 715.00 mq
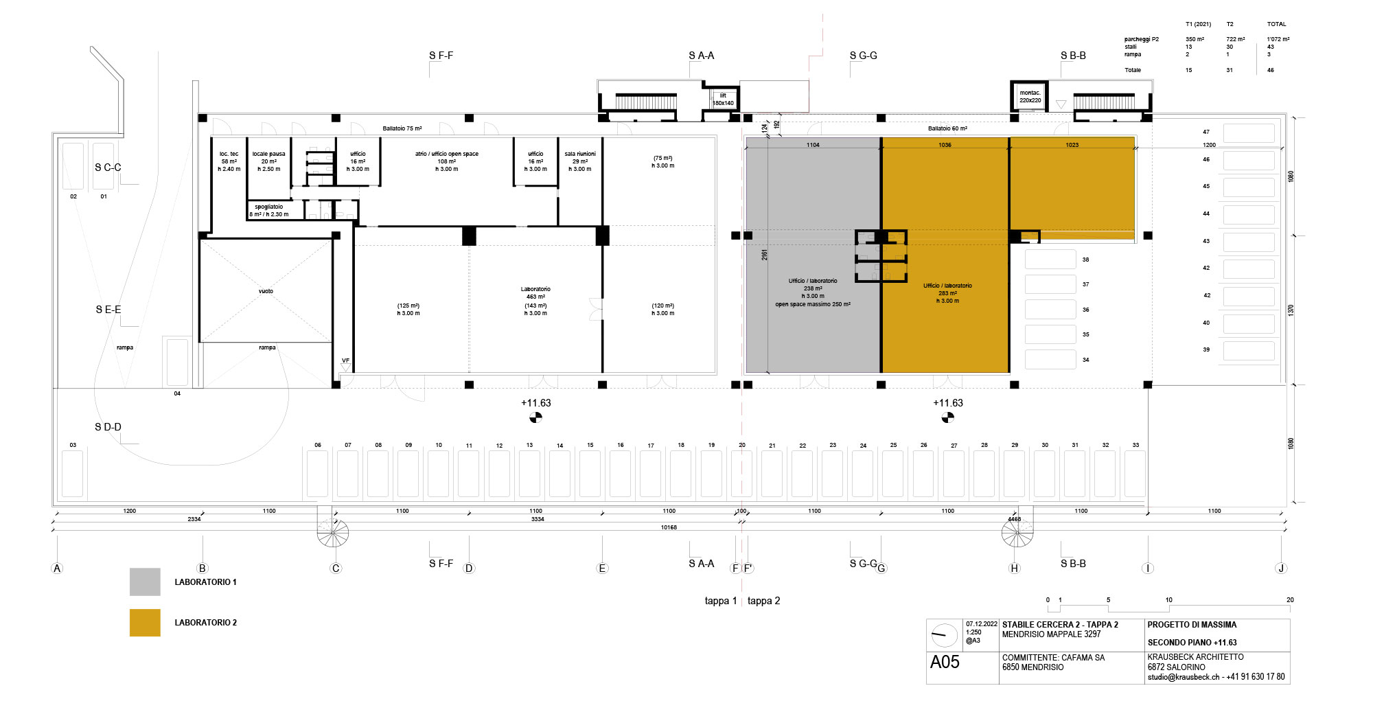
Laboratorio 1
- RCVS: risc. / condiz. ad aria
- vent. meccanica controllata
- INVOLUCRO: vetrato
- PAVIMENTO: tecnico con piastrelle
- Ufficio / Laboratorio 238.00 mq
Laboratorio 2
- RCVS: risc. / condiz. ad aria vent. meccanica controllata
- INVOLUCRO: vetrato
- PAVIMENTO: tecnico con piastrelle
- Ufficio / Laboratorio 283.00 mq







